Arkitekt og
byggesaksbistand
i Oslo og omegn

Arkitekt og byggesaks-bistand
i Oslo og omegn

Vi er et arkitektkontor som spesialiserer oss på byggesaker. Vi avklarer regelverk, utformer søknader og følger prosjektet trygt frem til ferdigattest.

1. Skisse

2.Søknad

3. Detaljer

4. Ferdigattest

FASER

Skisse. Søknad. Trygg gjennomføring.

Skisse. Søknad. Trygg gjennomføring.

Vi leder deg gjennom hele løpet – fra første idé og avklaringer mot regelverk, via komplett byggesøknad og anbudsmateriale, til oppfølging i byggeperioden og ferdigattest. Vi jobber tett på, snakker klart språk og gir forutsigbare valg som holder prosjektet på skinner.
Detaljerte arkitekttegninger og designplaner på arbeidsbordet, med måleinstrumenter og en datamaskin, for å illustrere arkitekturprosessen og snittutforming.

Skisseprosjekt

Vi starter på stedet, med befaring og registrering. Sammen går vi gjennom behov, ambisjoner og rammer, mens vi dokumenterer eksisterende forhold. Parallelt undersøker vi plan- og bygningslov, reguleringsbestemmelser og andre føringer som kan påvirke tiltaket. Deretter utarbeider vi håndtegnede planer, snitt og fasader i målestokk, supplert med en enkel 3D-skisse som gjør volum, lys og uttrykk lett å vurdere. Før vi presenterer, gjennomfører vi sidemannskontroll for å sikre kvalitet og konsistens. Normalt innen om lag tre uker etter befaring inviterer vi til møte på kontoret for å gå gjennom skisseprosjektet. Dere får materialet med dere hjem for rolig vurdering. Hvis dere ønsker å gå videre, gir vi et tydelig tilbud på neste fase.

Modell av moderne boligkompleks med kontorer, planlagt av SnittArkitektur.no.

Søknad til kommunen

Når retningen er satt, tegner vi prosjektet digitalt og tilpasser det basert på tilbakemeldingene fra skissen. Leveransen omfatter plan-, snitt- og fasadetegninger, situasjons- og utomhusplan, og ved behov terrengsnitt. Vi håndterer selve søknadsarbeidet – skjemaer, redegjørelser og nabovarsling – og innhenter eventuelle nabosamtykker eller begrunner dispensasjoner når det kreves. For mindre tiltak kan dere stå som ansvarlig tiltakshaver, og behandlingstiden er ofte kort. For tiltak som krever ansvarlige foretak søker vi rammetillatelse, med typisk inntil tolv ukers saksbehandling, før vi senere søker igangsettingstillatelse. I denne fasen er vi både ansvarlig arkitekt og ansvarlig søker, og vi følger saken tett opp mot kommunen.

Detaljerte arkitekttegninger og skisser for boligprosjekter som viser planlegging og utforming.

Detaljfasen

For å gi entreprenører et tydelig og sammenlignbart grunnlag utarbeider vi anbudstegninger med planer, snitt, fasader og dør- og vindusskjema. Vi beskriver løsninger og detaljer slik at ønsket kvalitet, materialbruk og uttrykk kommer klart frem, enten på tegningene eller i en egen beskrivelse. Ved behov kobler vi på relevante rådgivere og koordinerer leveranser fra disse. Anbudsmaterialet sendes til tre utvalgte entreprenører, som kommer på befaring før de leverer tilbud. Slik får dere oversiktlige priser å sammenligne og et trygt beslutningsgrunnlag før kontrakt.

Moderne arkitekttegning av prefabrikkhus med omgitt av grønne trær og byggeplaner, illustrerer innovativ snittarkitektur og bærekraftige boligdesign.

Byggefase og ferdigattest

Når entreprenør er valgt, søker vi igangsettingstillatelse og oppdaterer tegningsgrunnlaget til konkrete arbeidstegninger i dialog med utførende. Vi følger opp byggingen med befaringer og løpende avklaringer for å sikre at intensjonene i prosjektet ivaretas. Når arbeidene er fullført, håndterer vi søknad om ferdigattest. Endringer underveis kan utløse søknadsplikt eller medføre nye vurderinger opp mot plan- og bygningsloven og gjeldende planer. Derfor ønsker vi tett kontakt i denne fasen, slik at løsninger avklares raskt og riktig.

Om oss

Arkitektkontor med fokus på byggesaker

Snitt Arkitektur er et arkitektkontor som gjør byggesaker enkle å forstå og trygge å gjennomføre. Vi kombinerer solid regelverkskompetanse med tydelig visuell kommunikasjon, slik at du ser mulighetene tidlig og tar beslutninger på et godt grunnlag. Vi holder til i Oslo og bistår kunder i hele omegnen, fra første idé til ferdigattest. Hos oss møter du et lite og tilgjengelig team som følger prosjektet tett, gir ærlige råd og tar ansvar for fremdriften. Vi skisserer, søker, koordinerer og følger opp – alltid med mål om å levere ryddige prosesser, presise leveranser og et sluttresultat du kan være stolt av.

Moderne husdesign med store vindusflater og integrert uteplass, illustrasjon av arkitektonisk skisse for SnittArkitektur.no.
Moderne husdesign med store vindusflater og integrert uteplass, illustrasjon av arkitektonisk skisse for SnittArkitektur.no.

Gode grunner til å velge oss

Klart språk, ryddig søknad, trygg gjennomføring

Vi setter byggesaken i sentrum. Det betyr at vi prioriterer avklaringer tidlig, leverer presise redegjørelser og snakker kommunens språk – alt for å sikre en smidig saksgang. Våre håndskisser og enkle 3D-bilder gjør det lett å forstå alternativer og konsekvenser, før kostbare beslutninger tas. Vi kvalitetssikrer internt, er tydelige på forventninger og holder en jevn rytme i fremdriften. Som ansvarlig søker tar vi styringen på søknadsprosessen og sørger for at alle tråder samles – fra nabovarsel og dispensasjon til ramme- og IG-søknader. Resultatet er en ryddig prosess, færre overraskelser og et prosjekt som beveger seg sikkert fra idé til ferdigattest.

FAQ

For å gjøre det lett å komme i gang har vi samlet spørsmål og svar på ett sted. Finn raskt ut hvordan vi jobber og hva du får igjen.

For mindre tiltak kan du noen ganger stå som ansvarlig selv. Så snart prosjektet berører bærende konstruksjon, brannsikkerhet, fasadeendringer eller større ombygging, krever kommunen som regel ansvarlige foretak. Vi kan være både arkitekt og ansvarlig søker, og avklare hva som gjelder for ditt tiltak.

Tidsbruken avhenger av tiltaket og kommunen. Mindre tiltak kan behandles på rundt tre uker. Saker med ansvarlige foretak har normalt inntil 12 ukers saksbehandling for rammetillatelse, pluss tid til igangsettingstillatelse. Vi avklarer realistisk fremdriftsplan tidlig og holder deg oppdatert.

Vi gir fastpris eller tydelig fasepris. Typisk får du skisseprosjekt (plan/snitt/fasade + enkel 3D), søknadstegninger og redegjørelser, samt koordinering av nabovarsel og eventuelle dispensasjoner. Ved behov leverer vi anbuds- og arbeidstegninger og følger opp i byggeperioden. Du får alltid spesifisert hva som inngår før vi starter.

Nabomerknader og dispensasjon er vanlige tema. Vi vurderer regelverk, begrunner løsningen faglig og foreslår eventuelle justeringer som styrker saken. God dokumentasjon og tydelige redegjørelser øker sjansen for en smidig behandling.

Du kan først starte når nødvendig tillatelse er gitt. For ansvarspålagte tiltak kreves både rammetillatelse og igangsettingstillatelse. Vi sier ifra når du trygt kan gå i gang – og hva som må på plass i riktig rekkefølge.

Presisjonsmåling av arkitekttegninger med rødt blyant og linjal på skrivebord.

Referanser

Utvalgte prosjekter og resultater

Utdrag fra skisseprosjekter – enkle visualiseringer som gjør valg og avklaringer lettere før byggesaken går videre.

PS! Klikk på bildene for å se dem i full størrelse (PDF)

Nytt overdekket uteområde med plass til utendørsaktiviteter og sitteplasser, omgitt av eksisterende struktur og grøntarealer, for å forbedre utendørsopplevelsen.

Pergola på Rorbua, Aker Brygge

A10-01 Situasjonsplan
Plassering av ny pergola på brygga, tilpasset gangsoner og eksisterende bygg. Løsningen skjermer for vær uten å stjele utsyn.

Modern byggeskitse av fasade og pergola for Rorbu i Ålesund.

Pergola på Rorbua, Aker Brygge

A40-02 Fasade Sørøst
Rene linjer og lett konstruksjon for minst mulig inngrep i bryggemiljøet.

Moderne arkitekturforslag for en veranda fasade, designet av Snitt Arkitektur AS med fokus på funksjonalitet og estetikk.

Pergola på Rorbua, Aker Brygge

A40-01 Fasade Sørvest
Lav, rolig pergolaprofil som glir inn i fasaden. Tydelige mål gjør byggesaken forutsigbar.

Moderne arkitektoniske plantegninger for Rorbua - Pergola, detaljert planløsning og byggestandarder.

Pergola på Rorbua, Aker Brygge

A20-01 Plan 1. etasje
En enkel og driftssikker plan med riktig bredde og fri høyde. Lett å bygge, lett å bruke.

- Detaljert situasjonskart av bygge- og tomteplan for næringsbygg i Bærum kommune.

Olav Ingstads vei 7B

10-1 Situasjonsplan
Oversikt over adkomst og plassering av tiltak. Trafikkflyt og nabo­hensyn er ivaretatt.

Landskapsplan som viser utendørsområder, parkeringsplasser og grøntarealer rundt en næringsbygning.

Olav Ingstads vei 7B

A10-2 Utomhusplan
Strukturert parkering, tydelige ganglinjer og grønne felter som gjør området mer brukervennlig.

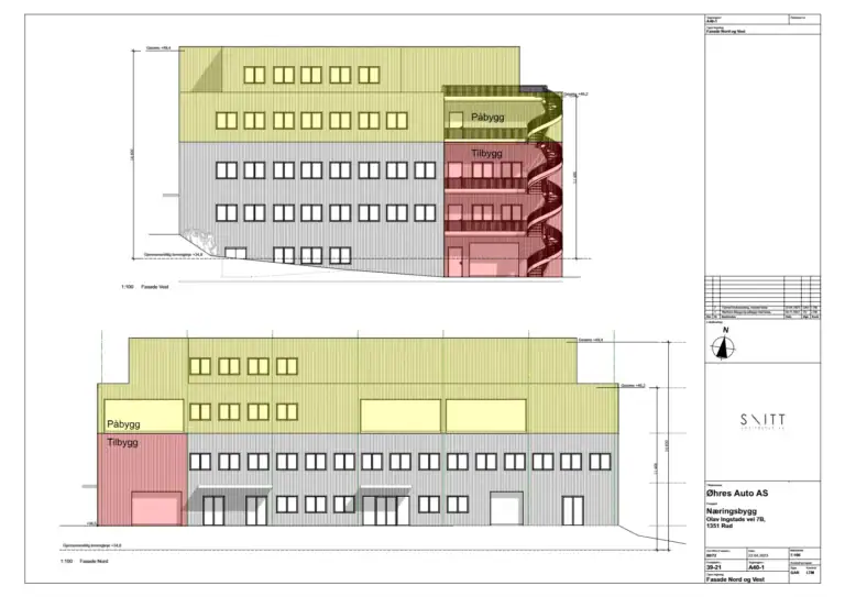
Moderne arkitektur med tilbygg og påbygg for bedrift i Norge, vist i fasadetegninger.

Olav Ingstads vei 7B

A40-1 Fasade Nord og Vest
Påbygg i gult og tilbygg i rødt viser volumgrepene. Et mer helhetlig uttrykk uten å dominere omgivelsene.

Rødt og gult arkitektonisk bygningsdesign for næringsbygg med spiralfyrtrapp og flere vinduer i fasadeløsning.

Olav Ingstads vei 7B

A40-2 Fasade Sør og Øst
Oppdatert fasade med klare soner for inngang og logistikk. En praktisk oppgradering som ser ryddig ut.

Klarteigningsplan for kontor- og leilighetsenheter i en kommersiell bygning, vist i skisse fra SnittArkitektur.no for byggprojektet på Vibags gate, Oslo.

Vibes gate 1B – Plan 1. etasje (søknad)

Foreslåtte endringer i første etasje, med leilighetsarealer markert. Planen tydeliggjør adkomst fra gårdsrom, oppgraderer våtrom og lager mer funksjonelle oppholds- og kjøkkensoner. Målet er bedre bokvalitet innenfor eksisterende rammer.

Klargjort situasjonskart for planlegging av boligområde på Vibes Gate i Oslo, med detaljer om reguleringsplan og bygningstiltak.

Vibes gate 1B – Situasjonskart (søknad)

Bygget i nabolagskontekst. Tiltaket gjelder interne endringer i første etasje (markert), uten utvidelse av bygningsvolum. Løsningen tar hensyn til lysforhold, adkomst via gårdsrom og nærliggende bebyggelse mot Vibes gate.

Kontakt oss

Få klare svar på byggesaken din

Vi er et arkitektkontor med hovedfokus på bistand i byggesaker. Vi avklarer regelverk, utformer søknader og følger prosjektet trygt frem til ferdigattest.

Ta kontakt på mail for en uforpliktende prat – vi svarer raskt.

Legg gjerne ved adresse eller GNR/BNR og en kort beskrivelse av tiltaket, så gjør vi en rask vurdering.

Detaljerte arkitekttegninger og snittyder av boligprosjekt på et skrivebord med målebånd, blyant og papirmodeller.
Detaljerte arkitekttegninger og snittyder av boligprosjekt på et skrivebord med målebånd, blyant og papirmodeller.

Arkitektkontor i Oslo som hjelper privatkunder, borettslag og bedrifter trygt gjennom byggesaker – fra skisse og søknad til ferdigattest.

Adresse

Kontakt

2026 Snitt Arkitektur AS | Org nr. 914 787 300